Zwei Wohnhäuser in ruhiger Lage - Doppelhaus mit vielen Nutzungsmöglichkeiten
Objektart
Adresse
Objektdaten
Informationen
Ausstattung
Details
Das Immobilienangebot besteht aus zwei Wohnhäusern (Doppelhaus) mit unterschiedlichen Baujahren, die eine bauliche Einheit bilden.
Die beiden Gebäude sind intern nicht miteinander verbunden und verfügen jeweils über einen separaten Hauseingang, eine eigene Heizungsanlage sowie getrennte technische Einrichtungen und eigenständige Flurstücke. Ein Verkauf erfolgt ausschließlich im Rahmen eines Gesamtverkaufs.
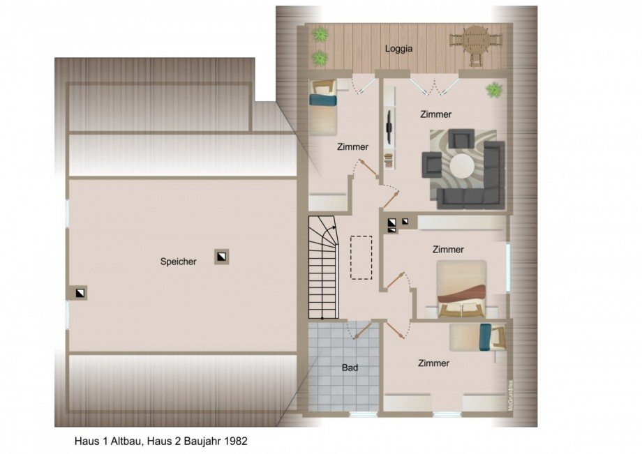
Haus 1 wurde im Jahr 1982 errichtet. Das Baujahr von Haus 2-Altbau wird auf etwa 1900 geschätzt. Die angegebenen Werte zur Wohnfläche (ca. 210 m²), zur Zimmeranzahl (9) sowie zur Grundstücksfläche (ca. 1.206 m²) stellen die Gesamtflächen beider Häuser dar.
Haus 1: Einfamilienhaus (Baujahr 1982, ca. 132 m² Wohnfläche)
Im Untergeschoss auf Straßenniveau sind eine interne Doppelgarage, ein Kellerraum, der Technikraum mit einer Öl-Zentralheizung (Baujahr 2010) sowie das Heizöllager untergebracht.
Über das geräumige Treppenhaus gelangt man in das Obergeschoss. Auf dieser Etage befinden sich die Küche, ein Badezimmer, das Esszimmer mit Zugang zum Balkon, das angrenzende Wohnzimmer mit Zugang zur großzügigen Terrasse und zum weitläufigen Grundstück.
Das Dachgeschoss bietet vier weitere Zimmer, ein Tageslichtbad sowie einen großen Balkon mit Blick auf das Grundstück. Zusätzlicher Stauraum steht im Dachboden zur Verfügung.
Die technischen Einrichtungen sowie Wand- und Bodenbeläge und Bäder entsprechen dem baujahrstypischen Zustand von 1982.
Haus 2 (Altbau, genaues Baujahr unbekannt, geschätzt etwa 1900, ca. 78 m² Wohnfläche):
Das Untergeschoss auf Straßenniveau verfügt über 4 Kellerräume und die Öl-Zentralheizung aus dem Jahr 1982.
Im Obergeschoss befinden sich drei Zimmer, eine Küche, ein Badezimmer und ein separates WC. Die Deckenhöhe beträgt auf dieser Ebene ca. 2,10 m. Der Dachboden bietet zusätzlichen Stauraum.
Die technischen Einrichtungen des Altbaus sind funktionsfähig, baujahrsbedingt jedoch nicht mehr zeitgemäß.
Das Haus 2 (Altbau) ist derzeit an eine Einzelperson vermietet. Nach Angaben der Verkäuferin hat der aktuelle Mieter in Aussicht gestellt, die Immobilie nach einer Kaufzusage innerhalb eines Zeitraums von drei Monaten zu verlassen.
Eine zukünftige Eigennutzung, beispielsweise als zusätzlicher Wohnraum, Hobby- oder Arbeitsbereich, ist grundsätzlich denkbar. Auf die Erstellung von Bildmaterial des Altbaus wurde aus Rücksichtnahme auf die Privatsphäre des Mieters verzichtet.
Hinweis zur Wohnflächenangabe für Haus 2-Altbau: Eine verbindliche Wohnflächenberechnung gemäß Wohnflächenverordnung (WoFlV) liegt für den Altbau nicht vor. Die Angabe ist daher ohne Gewähr.
Da es sich um zwei eigenständige Gebäude mit jeweils eigener Heizungsanlage handelt, liegen für beide Immobilien separate Energieausweise vor.
Energieausweise:
Haus 1
Gas-Etagenheizung, Baujahr 2010, Baujahr Gebäude 1982, Verbrauchsausweis, Energieeffizienzklasse H, Endenergiebedarf 256,2 kWh/(m²·a)
Haus 2 (Altbau)
Gas-Etagenheizung, Baujahr 1982, Baujahr Gebäude 1900 - geschätzt, Bedarfsausweis, Energieeffizienzklasse H, Endenergiebedarf 525,5 kWh/(m²·a)
Das nach Süden ausgerichtete, großzügige Gesamtgrundstück grenzt an den Waldrand und bietet vielfältige Möglichkeiten für private Rückzugsbereiche sowie Spiel- und Gartenflächen.
Dieses Immobilienpaket bietet eine seltene Gelegenheit für Käufer, die flexible Nutzungsmöglichkeiten schätzen - sei es als Generationenhaus, zum Wohnen und Arbeiten unter einem Dach oder als Investment mit Potenzial zur Vermietung.
Auf dem Grundstück von Haus 2 (Altbau) befindet sich ein Gewölbekeller mit zwei Kammern. Die linke Kammer reicht jedoch unter eine kleine Grundstücksfläche (ca. 29 m²), das der Stadt Freudenstadt gehört. Die Stadt hat jedoch in Aussicht gestellt, dass diese Fläche für einen überschaubaren Betrag erworben werden kann, sodass die linke Kellerkammer künftig ebenfalls genutzt werden kann.
Die Wohnlage besticht durch ihre ruhige und naturnahe Umgebung sowie die günstige Anbindung an Freudenstadt (2 km).
Freudenstadt mit dem bekannten Marktplatz, Einkaufsmöglichkeiten, Schulen, Kindergärten, medizinischer Versorgung und gastronomischen Angeboten ist in wenigen Minuten erreichbar. Eine gute Verkehrsanbindung sowie der Anschluss an den öffentlichen Nahverkehr sorgen für eine komfortable Erreichbarkeit auch für Berufspendler.
Die umliegenden Wälder laden zu Spaziergängen, Wanderungen und Radtouren ein. Im Winter verwandelt sich die Region in ein Winterwunderland, ideal für Skifahren und andere Wintersportaktivitäten.
Die Straße wurde bisher nicht erschließungsbeitragsrechtlich abgerechnet. Nach einer summarischen Prüfung der aktuellen Aktenlage ist davon auszugehen, dass diese Erschließungsanlage bisher nicht erstmalig endgültig hergestellt wurde und daher künftig noch Erschließungsbeiträge entstehen können. Ein solcher beitragsrechtlich relevanter Ausbau ist laut Aussage der Stadt Freudenstadt jedoch aktuell nicht geplant.
Alle Angaben beruhen auf Informationen und Unterlagen, die vom Eigentümer bzw. von Dritten zur Verfügung gestellt wurden. Eine eigenständige Prüfung auf Richtigkeit und Vollständigkeit durch den Vermittler hat nicht stattgefunden. Der Vermittler übernimmt daher keine Gewähr für die Richtigkeit, Vollständigkeit und Aktualität der gemachten Angaben.
